Price
Crescent Garage,Nantwich, CW5
Nantwich, CW5 5ND
No. of Bedrooms
Beds
No. of Bathrooms
Baths
Type of Property
Full Property Description
A FREEHOLD FORMER GARAGE COMMERCIAL PREMISES IN A PRIME CORNER LOCATION CONVENIENT TO NANTWICH TOWN CENTRE
DESCRIPTION
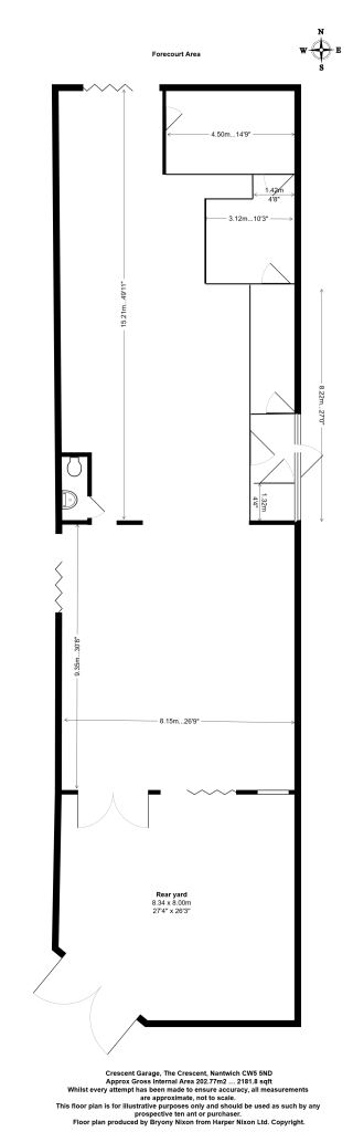
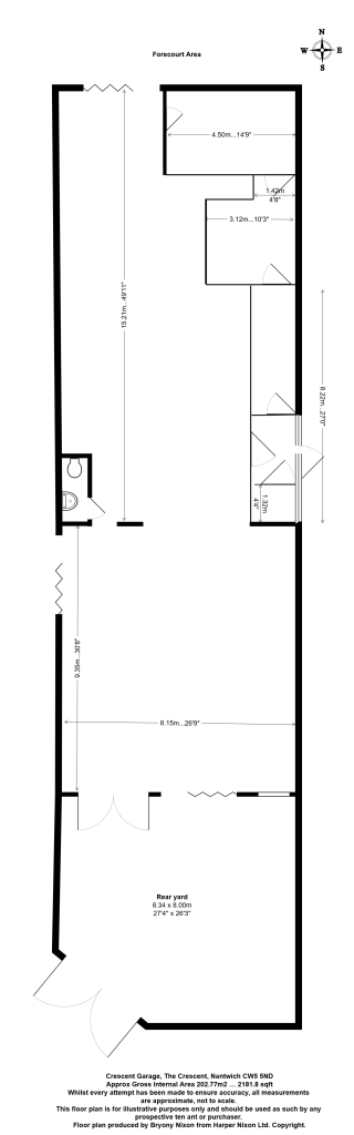
This Commercial premises is built of partial brick and steel construction with an asbestos roof. The premises has been run as a filling station and garage repairs for some 50 years and its now to be sold in its present state and any prospective purchaser would have to make their own enquiries with regards to planning and change of use. Presently the total floor area is 2,181 square feet comprising of shop area, workshops, office, second workshop and rear yard/compound and side vehicle access.
DIRECTIONS
CW5 5ND
LOCATION & AMENTIES
Whether you’re a history enthusiast, food lover, or outdoor adventurer, Nantwich delivers a rare blend of tranquillity and vibrancy. With its thriving community, rich heritage, and unbeatable location, it’s no wonder this town is consistently ranked among Cheshire’s most desirable places to live. Wander cobbled streets lined with timber-framed Tudor buildings, the iconic 12th-century St. Mary’s Church, and the striking Nantwich Market Hall, a testament to the town’s 400-year trading legacy. Boutique Shopping & Dining: Discover independent boutiques, artisan cafes, and award-winning restaurants. Don’t miss the monthly farmers' market for local produce. Take a dip at Britain’s oldest outdoor saltwater pool, Brine Pool, or stroll along the River Weaver’s tranquil paths and the Shropshire Union Canal. Savour gourmet delights at the Nantwich Food Festival or tap your feet at the Nantwich Jazz & Blues Festival. The Nantwich Show, a highlight of the agricultural calendar, draws crowds annually.
TENURE
Freehold.
RATEABLE VALUE
£9,800
SERVICES
All mains services are available. N.B. Tests have not been made of electrical, water, drainage and heating systems and associated appliances, nor confirmation obtained from the statutory bodies of the presence of these services. The information given should therefore be verified prior to a legal commitment to purchase.
VIEWINGS
By appointment with Baker Wynne & Wilson 01270 625214
Take a look around
Floorplans
Crescent Garage,Nantwich, CW5
Interested in this
property?
Get in touch for further details on your dream home
Share this
property
If you think a friend or family might be interested in this property, share using one of the icons below.












